yktk
yktk
small
Small qs Bed
26 M2
Queen Size Bedroom
Full Bathroom
Covered Terrace
Closet
MEP Closet
FF& E:
Queen Size Bedbase,headboard, nightstands, lounge chair, rug, , coffee table, outdoor furniture, sink, closet.
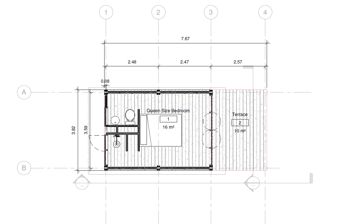
Queen Size Bedroom
Full Bathroom
Covered Terrace
Closet
MEP Closet
FF& E:
Queen Size Bedbase,headboard, nightstands, lounge chair, rug, , coffee table, outdoor furniture, sink, closet.